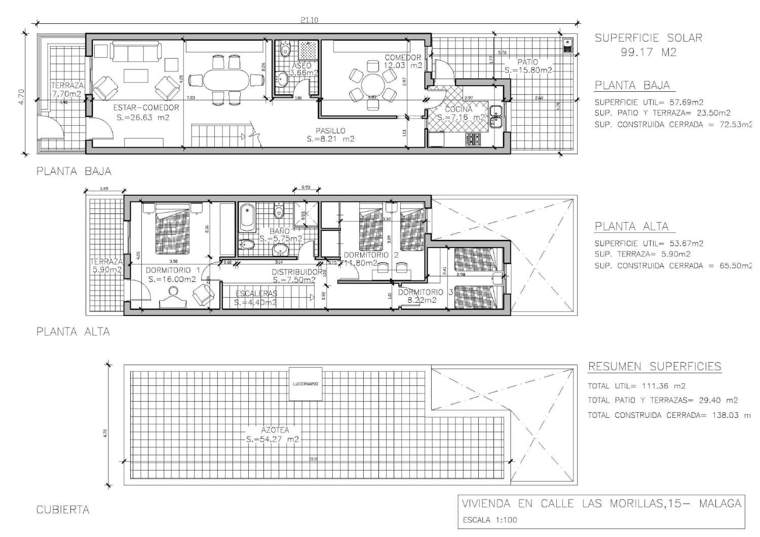
charakteristiky
General
Spárován
2 Podlah
1 Obývací pokoj
3 Ložnice
2 Koupelny
2 Terasy
Nádvoří
Povrchy
Plot: 99
m2
Postavena: 165
m2
Užitečné: 135
m2
stav
Dobrá ochrana
Zařízení
Nezávislá kuchyně
Cena
370.000 €
2.242 €
Energetický certifikát
|
CALIFICACIÓN ENERGÉTICA
|
Consumo energía kW h / m2 año |
Emisiones CO2 kg CO2 / m2 año |
|---|---|---|
| A | ||
| B | ||
| C | ||
| D | ||
| E | ||
| F | ||
| G |
Umístění a životní prostředí
Málaga
Poloha
External













































